Mobile QR Code QR CODE : Journal of the Korean Society of Civil Engineers

  1. 종신회원 ․ 교신저자 ․ 한라대학교 도시인프라공학과 교수 (Corresponding Author ․ Halla University ․ cmwon@halla.ac.kr)



다중첨가질량, 복합적층판, 고유진동수, 특별직교이방성
Multiple attached mass, Composite laminated plate, Natural frequency, Special orthotropic

1. 서 론

최근 항공우주, 자동차, 해양 및 토목 구조물 분야에서는 고강도, 경량화, 높은 내환경성 등의 특성을 갖춘 복합적층판(composite laminated plate)의 활용이 급격히 증가하고 있다. 이러한 복합재 구조물은 다양한 외부 환경 및 작동 조건에 따라 부가적인 하중이나 첨가질량(attached mass)을 포함하는 경우가 많으며, 이는 구조물의 동적 거동에 복잡한 영향을 미친다. 특히 복합적층판에 다수의 첨가질량이 비정형적으로 분포할 경우, 진동 특성의 변화를 예측하는 것은 구조물의 안정성 확보와 설계 최적화 측면에서 매우 중요한 문제로 인식되고 있다.

복합적층판의 진동 특성은 적층수, 섬유보강 방향, 경계조건뿐만 아니라 첨가질량의 개수, 크기, 위치에 따라 달라질 수 있다. 지금까지는 단일 첨가질량이 존재하는 복합판의 진동해석에 관한 연구가 활발히 수행되어 왔으나, 실제 구조물에서는 복수의 첨가질량이 존재할 가능성이 높음에도 이에 대한 체계적인 해석 및 분석 연구는 상대적으로 미흡한 실정이다. 특히, 다중 첨가질량의 분포형태 및 위치변화에 따른 고유진동수의 변화나 모드형상의 변동에 대한 정량적 분석은 매우 제한적으로 수행되어 왔다.

기존 연구들을 살펴보면, Aydogdu 등은 단일 질량이 복합판의 고유진동수에 미치는 영향을 분석하였으며(Aydogdu and Filiz, 2016), Hossain 등은 첨가질량의 위치 변화에 따른 진동 특성을 평가하였다(Hossain et al., 2015). 그러나 이러한 연구들은 대부분 단일 첨가질량이 존재하는 경우를 대상으로 하였고, 첨가질량 간 동적 상호작용(dynamic interaction)에 대한 분석은 거의 이루어지지 않았다.

이와 같은 배경하에, 본 연구는 다중 첨가질량이 존재하는 단순지지형 복합적층판을 대상으로 고유진동수에 대한 해석을 수행하고, 첨가질량의 개수, 크기, 위치 변화가 진동 특성에 미치는 영향을 체계적으로 분석하고자 한다. 해석에는 Kim이 제안한 처짐영향계수를 이용한 방법을 기반으로 하였으며(Kim, 1974) 이 방법은 복합적층판의 제1모드 고유진동수를 계산하기 위해 1989년 일본첨단재료기술협회 국제학회(JISSEⅠ)에서 2차원 부재의 진동 해석으로 확장 적용되었다(Kim et al., 1989). 이후 Hong 등은 해당 방법을 이용하여 첨가질량이 존재하는 특별직교이방성 복합판의 고유진동수 해석을 수행하였으며(Hong et al., 2017), Won은 임의 경계조건을 갖는 복합판의 형상비에 따른 진동 특성을 Kim의 방법과 유한요소법을 병행하여 분석하였다(Won, 2002). 또한 Won 등은 적층수가 증가할수록 유사등방성 특성을 나타내는 복합적층판이 횡방향 하중과 축하중을 받는 경우 진동 해석 결과를 발표하였다(Won et al., 2006).

본 연구에서는 이러한 선행 연구를 바탕으로, Kim의 방법을 응용하여 자중(self-weight)과 임의의 다중 첨가질량이 존재하는 복합적층판을 대상으로 첨가질량의 크기 및 위치 변화가 고유진동수에 미치는 영향을 정량적으로 분석하였다. 본 연구의 결과는 다수의 첨가질량이 존재하는 복합판 구조물의 설계 및 동적 해석에 있어 기초자료로 활용될 수 있을 것으로 기대된다.

2. 연구방법

2.1 해석 방법

해석방법을 설명하기 위해, 기존에 이미 발표된(Won, 2025) 일부 내용을 응용하여 본 논문에서 다시 제시하였다.

반복구조물의 고유진동수는 공명 상태에서 구조물의 처짐 모드 형상에 따라 확산하기 시작하는 주파수로 정의된다. 자유진동에 의해 발생하는 처짐으로부터, 해당 처짐을 유발하는 데 필요한 관성력을 산정할 수 있다. 이 과정에서 결정된 모드 형상이 충분히 정확하다면, 반복 계산과정에서 수렴된 값과 바로 이전 값 사이의 상대적인 최대 처짐은 관성력 하에서 일정하게 유지된다.

구조물의 진동은 조화운동(harmonic motion)으로 간주할 수 있으며, 진동의 진폭 형상은 삼각함수로 표현이 가능하다. 제 1모드만을 고려할 경우, 구조부재의 처짐 형상은 다음 Eq. (1)과 같이 표현된다.

(1)
$w(x,\: y,\: t)=W(x,\: y)F(t)=W(x,\: y)\sin\omega t$

여기서 W는 최대 진폭, ω는 고유 진동 주파수, t는 시간이다. Newton의 운동법칙에 따라 진동하는 질량 m의 동적 관성력은 다음 Eq. (2)와 같이 표현된다.

(2)
$F=m\dfrac{\partial^{2}w}{\partial t^{2}}$

Eq. (1)을 Eq. (2)에 대입하면 다음과 같은 Eq. (3)을 얻을 수 있다.

(3)
$F=-m(\omega)^{2}W(x,\: y)\sin\omega t$

여기서 ω와 W는 미지수이다. 고유진동수 ω를 구하기 위해, 구조물의 특정 위치에서 최대 처짐의 진폭을 임의로 설정한다.

(4)
$w(i,\: j)^{(1)}=W(i,\: j)^{(1)}$

여기서 (i, j)는 계산에 고려된 지점 좌표를 의미한다. 이 값은 절대적인 값이 아니며, 경험적으로 적절한 값을 가정하는 것이 수렴 속도 향상에 유리하다. 이후 이 최대 진폭에 대응하는 동적 관성력은 다음 Eq. (5)로 표현된다.

(5)
$F(i,\: j)^{(1)}=-m(i,\: j)[\omega(i,\: j)^{(1)}]^{2}w(i,\: j)^{(1)}$

이 관성력에 의해 발생하는 새로운 변위는 처짐 영향계수를 이용하여 다음 Eq. (6)으로 계산할 수 있다.

(6)

$w(i,\: j)^{(2)}=f\left(m(i,\: j)[\omega(i,\: j)^{(1)}]^{2}w(i,\: j)^{(1)}\right)$

$ =\Sigma\Delta(i,\: j,\: k,\: l)\left(-m(i,\: j)[\omega(i,\: j)^{(1)}]^{2}w(i,\: j)^{(1)}\right)$

여기에서 Δ(i, j)는 처짐에 대한 영향계수(deflection influence coefficient)이다. 공진 상태에서는 구조부재의 모든 지점에서 Eq. (4)와 Eq. (6)으로 계산된 변위가 동일해야 하므로 다음 조건을 만족해야 한다.

(7)
$w(i,\: j)^{(1)}/w(i,\: j)^{(2)}=1$

Eq. (7)로부터 각 지점의 고유진동수 ω(i, j)(1) 값을 계산할 수 있으나, 대부분의 경우 이 값은 지점마다 약간의 차이를 보인다. 구조부재의 고유진동수는 부재의 모든 지점에서 동일해야 하므로 ω(i, j) 값이 모든 지점에서 충분히 동일해질 때까지 이 과정을 반복 수행한다. 일반적으로 첫 번째 사이클(Cycle)에서 계산된 ω(i, j)의 최댓값과 최솟값의 차이는 공학적으로 무시할 수 있을 정도이며, 평균값을 사용하거나 최대 처짐 지점의 ω(i, j) 값을 선택하여 해석 정확도를 높일 수 있다.

두 번째 사이클에서는 다음 Eq. (8)과 같은 방식으로 계산된 절대 처짐값을 사용하여 편리하게 수렴 여부를 확인할 수 있다.

(8)
$w(i,\: j)^{(3)}=f\left(m(i,\: j)[\omega(i,\: j)^{(2)}]^{2}w(i,\: j)^{(2)}\right)$

판의 자중과 (m1, n1)에 위치한 첨가질량을 동시에 고려할 경우에는 다음 Eq. (9)을 사용할 수 있다.

(9)
$w(i,\: j)^{(1)}=w(i,\: j)^{(2)}=\left\{\sum^{k,\: l}\Delta(i,\: j,\: k,\: l)・m(k,\: l)・w(k,\: l)^{(1)} \\ +\sum^{m1,\: n1}\Delta(i,\: j,\: m1,\: n1)・\dfrac{P1(m1,\: n1)}{g}・w(m1,\: n1)^{(1)}\right\}・[\omega(i,\: j)^{(1)}]^{2}$

또한 판의 자중과 두 곳 (m1, n1)와 (m2, n2)에 위치한 첨가질량을 동시에 고려할 경우에는 다음 Eq. (10)을 사용할 수 있다.

(10)
$w(i,\: j)^{(1)}=w(i,\: j)^{(2)} =\left\{\sum^{k,\: l}\Delta(i,\: j,\: k,\: l)・m(k,\: l)・w(k,\: l)^{(1)}\\ +\sum^{m1,\: n1}\Delta(i,\: j,\: m1,\: n1)・\dfrac{P1(m1,\: n1)}{g}・w(m1,\: n1)^{(1)} \\ + \sum^{m2,\: n2}\Delta(i,\: j,\: m2,\: n2)・\dfrac{P2(m2,\: n2)}{g}・w(m2,\: n2)^{(1)}\right\}・[\omega(i,\: j)^{(1)}]^{2}$

이와 같이 여러 곳에 첨가질량이 존재하는 경우 비교적 간단한 방법으로 고유진동수를 계산할 수 있다. 복합재료 구조물을 포함하여 불규칙한 단면과 이상적인 지지조건이 아닌 경우에는, 경계조건과 관계없이 판을 여러 개의 요소로 분할하여 해석하는 것이 효율적이다.

2.2 복합적층판의 영향계수

본 연구에서 고려한 복합적층판은 적층 수가 증가할수록 연계강성(coupling stiffness)이 감소하게 되어, 특별직교이방성(special orthotropic) 판의 해석 방정식을 적용할 경우 매우 정확한 결과를 얻을 수 있다. 이에 본 연구에서는 횡방향 하중 q(x, y)을 받는, 사변 단순지지된 특별직교이방성 적층판을 대상으로 하였다. 이때, 열과 습열효과는 무시하였다.

해당 판의 처짐과 외력은 다음 Eq. (11) and (12) 같이 이중 푸리에 급수(Fourier series)로 표현할 수 있다.

(11)
$w(x,\: y)=\sum_{m=1}^{\infty}\sum_{n=1}^{\infty}w_{mn}\sin\dfrac{{m}\pi{x}}{{a}}\sin\dfrac{{n}\pi{y}}{{b}}$
(12)
$q(x,\: y)=\sum_{m=1}^{\infty}\sum_{n=1}^{\infty}q_{mn}\sin\dfrac{{m}\pi{x}}{{a}}\sin\dfrac{{n}\pi{y}}{{b}}$

여기서 a, b는 판의 길이 및 폭을 의미하며, m, n은 푸리에 급수의 항 번호를 나타낸다. 특별직교이방성 적층판의 지배방정식은 다음 Eq. (13)과 같다.

(13)
$D_{11}\dfrac{\partial^{4}w}{\partial x^{4}}+2D_{3}\dfrac{\partial^{4}w}{\partial x^{2}\partial y^{2}}+D_{22}\dfrac{\partial^{4}w}{\partial y^{4}} = q(x,\: y)$

여기서 $D_{3}=D_{12}+2D_{66}$이다. Eq. (11) and (12)를 Eq. (13)에 대입하고 m, n의 정해진 값에 대해 정리하면, 다음 Eq. (14)와 같은 관계를 얻을 수 있다.

(14)
$w_{mn}=\dfrac{q_{mn}}{\pi^{4}\times DEN}$

여기서 Eq. (15)는 다음과 같다.

(15)
$DEN=D_{1 1}\left(\dfrac{m}{a}\right)^{4}+2D_{3}\left(\dfrac{m}{a}\right)^{2}\left(\dfrac{n}{b}\right)^{2}+D_{22}\left(\dfrac{n}{b}\right)^{4}$

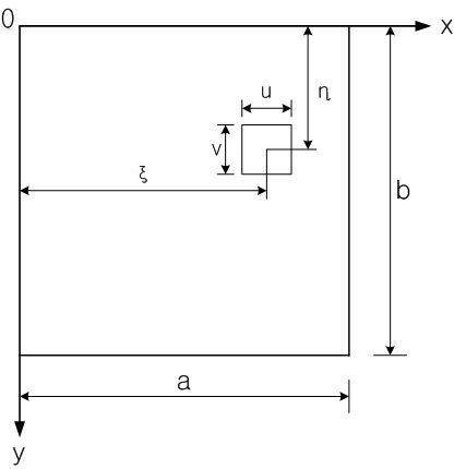
단순지지된 특별직교이방성 적층판에 대하여, Fig. 1과 같이 직사각형 면적 u×v에 균등하게 분포된 부분하중 q(x, y)가 작용할 때 m과 n의 고정된 값에 대한 푸리에 계수 qmn은 다음 Eq. (16)과 같다.

Fig. 1. Considered Laminated Plate under Transverse Load

../../Resources/KSCE/Ksce.2025.45.6.0601/fig1.png
(16)
$q_{mn}=\dfrac{4q}{abuv}\int_{\xi -u/2}^{\xi +u/2}\int_{\eta -v/2}^{\eta +v/2}\sin\left(\dfrac{{m}\pi{x}}{{a}}\right)\sin\left(\dfrac{{n}\pi{y}}{{b}}\right){dy}{dx} \\ =\dfrac{16q}{\pi^{2}m\nu v}\sin\left(\dfrac{{m}\pi\xi}{{a}}\right)\sin\left(\dfrac{{n}\pi\eta}{{b}}\right) \\ \times\sin\left(\dfrac{{m}\pi{u}}{2a}\right)\sin\left(\dfrac{{n}\pi{v}}{2{b}}\right)$

u→0이고 v→0인 집중하중의 경우에 Eq. (16)은 다음 Eq. (17)로 된다.

(17)

$\lim_{u\to 0}\sin\left(\dfrac{{m}\pi{u}}{2{a}}\right)=\dfrac{m\pi u}{2a}$,

$\lim_{v\to 0}\sin\left(\dfrac{{n}\pi{v}}{2{b}}\right)=\dfrac{n\pi v}{2b}$

Eq. (17)을 Eq. (16)에 대입하면 다음 Eq. (18)과 같이 된다.

(18)
$q_{mn}=\dfrac{4q}{ab}\sin\left(\dfrac{{m}\pi\xi}{{a}}\right)\sin\left(\dfrac{{n}\pi\eta}{{b}}\right)$

이로부터 처짐 영향계수(influence coefficient)는 다음 Eq. (19)로 계산할 수 있다.

(19)
$w(x,\: y)=\Delta(x,\: y,\: \xi ,\: \eta) \\ =\dfrac{4}{\pi^{4}ab}\times\sum_{m=1}^{\infty}\sum_{n=1}^{\infty}\dfrac{\sin\dfrac{{m}\pi\xi}{{a}}\sin\dfrac{{n}\pi\eta}{{b}}}{DEN}\\ \times\sin\dfrac{m\pi x}{a}\sin\dfrac{{n}\pi{y}}{{b}}$

Eq. (19)로부터 계산된 처짐 영향계수와 앞 절에서 설명한 고유진동수 해석방법을 조합하여, 복합적층판의 고유진동수를 효율적으로 산정할 수 있다.

3. 수치 해석

본 연구에서는 $[\alpha\beta\beta\alpha\alpha\beta]_{{r}}$형태의 적층판에 1개의 첨가질량이 각각 임의의 위치에 존재하는 경우와 2개의 첨가질량이 각각 임의의 위치에 존재하는 경우를 고려하였으며 첨가질량의 크기는 적층판 자중의 N배로 설정하여 고유진동수 해석을 수행하였다. 상기 적층판은 적층수가 증가함에 따라 굽힘-비틀림 연계강성인 D16, D26 그리고 굽힘-전단 연계강성 B16, B26 값이 점차 감소하여 유사등방성(Quasi-Isotropic)판 거동을 나타내므로, 특별직교이방성(Special Orthotropic) 적층판에 대한 이론식을 적용할 수 있다.(Won et al., 2006). 따라서 r=4일 때 다음과 같이 Glass Fiber Reinforced Plastic의 물성값을 적용하였다.

E1=38.6 GPa, E2=8.27 GPa, $\nu_{12}=0.26$, $\nu_{21}=0.0557$, G12=4.14 GPa, h0=0.000125 m

이때 보강방향에 따라 A11, B16, B26, D16, D26의 값을 Table 1에 나타내었고, A*=A/h, B*=2b/h^2, D*=12D/h^3으로 정규화하여 그 값을 Table 2에 나타내었으며 D*11을 기준으로 상대강성을 비교하여 Table 3에 나타내었다. 여러 보강각도 중에서 상대강성이 0.5 % 이하인 $\alpha =-\beta =30^{\circ}$를 대상으로 수치해석을 수행하였다.

Table 1. $A_{11},\: B_{16},\: B_{26},\: D_{16},\: D_{26}$ for $[\alpha\beta\beta\alpha\alpha\beta]_{r}$ Type Laminate, When $\alpha = -\beta$, r = 4, $h_{0}=0.000125{m}$
Angle($\alpha$) 15˚ 30˚ 45˚ 60˚ 75˚ 90˚
A11 1.175E08 1.063E08 7.944E07 5.136E07 3.327E07 2.637E07 2.517E07
B16 0 -4.206E02 -5.967E02 -4.809E02 -2.362E02 -6.023E01 0
B26 0 -6.023E01 -2.362E02 -4.809E02 -5.967E02 -4.206E02 0
D11 8.813E01 7.974E01 5.958E01 3.852E01 2.496E01 1.977E01 1.888E01
D16 0 0 0 0 0 0 0
D26 0 0 0 0 0 0 0
Table 2. $A^{*}_{11},\: B^{*}_{16},\: B^{*}_{26},\: D^{*}_{16},\: D^{*}_{26}$ for $[\alpha\beta\beta\alpha\alpha\beta]_{r}$ Type Laminate, When $\alpha = -\beta$, r = 4, $h_{0}=0.000125{m}$
Angle($\alpha$) 15˚ 30˚ 45˚ 60˚ 75˚ 90˚
A*11 3.917E10 3.544E10 2.648E10 1.712E10 1.109E10 8.788E09 8.392E09
B*16 0 -9.348E07 -1.326E08 -1.069E08 -5.250E07 -1.338E07 1.257E00
B*26 0 -1.338E07 -5.250E07 -1.069E08 -1.326E08 -9.348E07 1.743E01
D*11 3.917E10 3.544E09 2.648E10 1.712E10 1.109E10 8.788E09 8.392E09
D*16 0 0 0 0 0 0 0
D*26 0 0 0 0 0 0 0
Table 3. $(A^{*}_{11},\: B^{*}_{16},\: B^{*}_{26},\: D^{*}_{16},\: D^{*}_{26})/D^{*}_{11}$ for $[\alpha\beta\beta\alpha\alpha\beta]_{r}$ Type Laminate, When $\alpha = -\beta$, r = 4, $h_{0}=0.000125{m}$
Angle($\alpha$) 15˚ 30˚ 45˚ 60˚ 75˚ 90˚
A*11/D*11 1.00000 1.00000 1.00000 1.00000 1.00000 1.00000 1.00000
B*16/D*11 0 0.00264 0.00501 0.00624 0.00473 0.00152 0
B*26/D*11 0 0.00038 0.00198 0.00624 0.01195 0.01064 0
D*16/D*11 0 0 0 0 0 0 0
D*26/D*11 0 0 0 0 0 0 0

적층판의 경계조건은 Kim의 방법의 확장 가능성을 보다 정확하게 확인하기 위해 Navier의 해석해가 존재하는 네 변이 모두 단순지지된(Simply Supported on All Edges) 조건으로 설정하였으며 적층판의 크기는 1m×1m로 고려하였다.

첨가질량의 위치는 Fig. 2와 같이 판의 크기를 가로 및 세로 방향으로 동일하게 5등분하여 각 부분의 중심점을 기준으로 배치하였다. 각 위치는 (1,1)에서 (5,5)까지 총 25개 지점으로 설정하였으며, 첨가질량의 크기는 $1/5\times 1/5\times\rho{h}({q}_{0}/{g})$를 기준으로 이를 배수로 하여 변수를 설정하였다. 여기서 ρ, h, g는 각각 질량 밀도, 판의 두께 그리고 중력가속도를 의미한다.

Fig. 2. Location of Attached Mass

../../Resources/KSCE/Ksce.2025.45.6.0601/fig2.png

균일단면의 복합적층판은 횡방향 등분포하중 q0를 받는 것으로 가정하고 첫 번째 모드에 대하여 초기 모드 형상은 다음과 같이 설정하였다.

${W}({i},\:{j})^{(1)}=\begin{matrix}10& 20& 30& 20& 10 \\ 20 & 30& 40& 30& 20 \\ 30 & 40& 50& 40& 30 \\ 20 & 30& 40& 30& 20 \\ 10 & 20& 30& 20& 10\end{matrix}$

영향면은 Eq. (19)를 이용하여 계산하였으며, 이 영향계수를 Eq. (9) and (10)에 적용하여 결정한 적층수와 섬유 보강각도에 대해 첨가질량의 개수와 위치에 따라 고유진동수를 산정하였다. 해석결과를 검증하기 위해 상용프로그램 ABAQUS를 이용한 해석결과를 Mesh 크기에 따라 정리하여 본 해석방법과 비교 검증하였다.

4. 결과 분석

4.1 유한요소 프로그램의 오차 범위 계산

이 논문에서 사용한 물성과 기하형상을 고려하여 사변단순지지된 적층판에 대해 유한요소 프로그램(ABAQUS)을 이용하여 Mesh Size별로 해석한 결과를 본 해석방법(Kim의 방법)의 결과와 비교하여 Table 4에 정리하였다. 여기에서 단위질량은 1 kg/m^3으로 고려하였다.

Table 4. Comparison of Frequencies($\omega$) with Different Mesh Sizes for $[\alpha\beta\beta\alpha\alpha\beta]_{r}$ ($\alpha = -\beta = 30^{\circ}$, r=4, a=b=1m)
Mesh Size Abaqus(f) Abaqus($\omega$) Kim/Abaqus Kim($\omega$)
4×4 426.00 2676.64 0.9482

$139.01/\sqrt{1\times 0.000125\times 24}$

= 2538.02

8×8 409.77 2574.66 0.9858
12×12 406.79 2555.94 0.9930
16×16 405.72 2549.21 0.9956
20×20 405.21 2546.01 0.9969
40×40 404.42 2541.05 0.9988

Table 4로부터 Mesh Size가 40×40일 때 유한요소 프로그램에 의한 값과 Kim의 방법에 의한 값이 99.88 % 일치하므로 이 Mesh Size를 기준으로 자중크기의 첨가질량이 존재하는 경우 두 방법에 의한 값을 비교하여 Table 5에 나타내었다. 해석결과 Kim의 방법과 유한요소 프로그램에 의해 계산된 진동수 값이 95 % 이상 일치하였다.

Table 5. Comparison of Frequencies($\omega$) of $[\alpha\beta\beta\alpha\alpha\beta]_{r}$ Type Laminates according to the Location of Attached Mass. ($\alpha = -\beta = 30^{\circ}$, r=4, a=b=1m)
First Location Second Location Abaqus($\omega$) Kim($\omega$) Kim($\omega$)/Abaqus($\omega$)
(3,3) None 1133.98 1082.30 0.9544
(1,1) 1128.71 1097.56 0.9565
(2,2) 973.27 928.21 0.9537
(3,3) 842.26 798.76 0.9484

4.2 1개의 첨가질량이 존재할 경우

1개의 첨가질량이 각각 다른 위치에 작용할 경우 복합적층판의 고유진동수 변화를 확인하기 위하여 판의 각 위치에 판의 자중에 1~5배(N=1~5)인 경우를 고려하여 해석을 진행하였으며, 해석 결과를 Table 6Figs. 3~5에 정리하여 나타내었다.

Table 6. Natural Frequencies, $\omega_{n}/\sqrt{\rho{h}}$, of $[\alpha\beta\beta\alpha\alpha\beta]_{r}$ Type Laminates, according to the Location of Attached Mass. ($\alpha = -\beta = 30^{\circ}$, r=4, a=b=1m)
N Location of Attached Mass
(1,1) (1,2) (1,3) (1,4) (1,5) (2,1) (2,2) (2,3) (2,4) (2,5) (3,1) (3,2) (3,3)
0 139.01 139.01 139.01 139.01 139.01 139.01 139.01 139.01 139.01 139.01 139.01 139.01 139.01
1 134.94 114.97 109.17 115.25 134.89 111.28 72.01 66.34 72.13 111.59 104.25 64.92 59.28
2 125.03 93.26 88.03 93.67 125.82 87.66 53.57 49.24 53.75 87.85 81.51 48.10 43.75
3 110.90 79.47 75.04 79.69 112.02 73.82 44.44 40.88 44.57 74.24 68.60 39.88 36.26
4 98.87 70.18 66.35 70.30 99.71 64.89 38.83 35.78 38.91 65.08 60.38 34.80 31.69
5 89.64 63.47 60.06 64.12 90.10 58.51 34.92 32.16 34.96 58.61 54.45 31.27 28.46

N Location of Attached Mass (Continued)
(3,4) (3,5) (4,1) (4,2) (4,3) (4,4) (4,5) (5,1) (5,2) (5,3) (5,4) (5,5)
0 139.01 139.01 139.01 139.01 139.01 139.01 139.01 139.01 139.01 139.01 139.01 139.01
1 65.13 104.67 111.41 72.31 66.43 72.16 111.63 134.81 115.55 109.16 115.38 134.88
2 48.08 81.69 88.04 53.67 49.26 53.83 87.88 126.04 94.54 88.22 93.42 125.94
3 39.85 68.69 74.02 44.53 40.89 44.61 73.91 111.76 80.51 75.21 79.82 111.56
4 34.77 60.32 64.96 38.88 35.71 38.93 65.12 99.49 70.95 66.47 70.38 99.27
5 31.25 54.70 58.54 35.40 32.10 34.98 58.64 90.65 64.04 60.15 63.60 90.21

Fig. 3. Natural Frequencies, $\omega_{{n}}/\sqrt{\rho{h}}$, according to the Magnitude and Location of Attached Mass, (1,1)~(1,5)

../../Resources/KSCE/Ksce.2025.45.6.0601/fig3.png

Fig. 4. Natural Frequencies, $\omega_{{n}}/\sqrt{\rho{h}}$, according to the Magnitude and Location of Attached Mass, (2,1)~(3,5)

../../Resources/KSCE/Ksce.2025.45.6.0601/fig4.png

Fig. 5. Natural Frequencies, $\omega_{{n}}/\sqrt{\rho{h}}$, according to the Magnitude and Location of Attached Mass, (3,1)~(3,5)

../../Resources/KSCE/Ksce.2025.45.6.0601/fig5.png

Figs. 3~5로부터 첨가질량이 판의 중심에 가까이 위치할수록 그리고 첨가질량이 증가할수록 고유진동수가 현저하게 감소하였으며 판의 중심을 기준으로 대칭인 점에 첨가질량이 위치할 경우 유사한 경향을 나타내었다. 또한 판의 자중 만큼의 질량이 판의 중심에 위치했을 때 진동수가 139.01에서 59.28로 57.3 % 감소함을 알 수 있다.

4.3 2개의 첨가질량이 존재할 경우

2개의 첨가질량이 서로 다른 위치에 작용할 경우, 복합적층판의 고유진동수에 미치는 영향을 정량적으로 평가하기 위하여 수치해석을 수행하였다. 본 해석에서는 고유진동수에 가장 영향을 크게 미치는 중심 지점인 (3,3) 위치에 하나의 첨가질량을 판 자중의 1배, 2배, 3배로 고정하고, 나머지 하나의 첨가질량을 판의 각 위치에 순차적으로 배치하여 해석을 진행하였다.

이때 두 번째 첨가질량의 크기는 판 자중의 1배, 2배, 3배로 설정하여 변수로 고려하였다. 이를 통해 첨가질량의 크기 및 위치 변화가 복합적층판의 고유진동수에 미치는 영향을 비교 분석하였다. 해석 결과는 Tables 7~9Figs. 6~10에 제시하였다.

각각의 위치에 대해 첨가질량의 크기에 따른 고유진동수의 절대값과 함께, 첨가질량이 존재하지 않는 기준 상태에 대한 고유진동수 변화 비율도 함께 나타내어, 질량이 증가함에 따라 고유진동수가 어떻게 감소하는지를 명확히 파악할 수 있도록 하였다.

Table 7. Natural Frequency, $\omega_{n}/\sqrt{\rho{h}}$, of $[\alpha\beta\beta\alpha\alpha\beta]_{r}$ Type Laminates, according to the Location of Second Attached Mass when N=1 of First Attached Mass is at (3,3).
N Location of Second Attached Mass
(1,1) (1,2) (1,3) (1,4) (1,5) (2,1) (2,2) (2,3) (2,4) (2,5)
0 59.28 (1.000) 59.28 (1.000) 59.28 (1.000) 59.28 (1.000) 59.28 (1.000) 59.28 (1.000) 59.28 (1.000) 59.28 (1.000) 59.28 (1.000) 59.28 (1.000)
1 59.13 (0.997) 58.14 (0.981) 57.45 (0.969) 58.13 (0.981) 59.13 (0.997) 58.21 (0.982) 50.84 (0.858) 47.92 (0.808) 51.38 (0.867) 58.15 (0.981)
2 58.97 (0.995) 56.78 (0.958) 55.34 (0.934) 56.71 (0.957) 58.96 (0.995) 56.76 (0.957) 44.34 (0.748) 40.63 (0.685) 44.61 (0.753) 56.65 (0.956)
3 58.78 (0.992) 55.16 (0.930) 53.04 (0.895) 55.05 (0.929) 58.74 (0.991) 54.94 (0.927) 39.21 (0.661) 35.73 (0.603) 39.48 (0.666) 54.83 (0.925)

N Location of Second Attached Mass (Continued)
(3,1) (3,2) (3,3) (3,4) (3,5) (4,1) (4,2) (4,3) (4,4) (4,5)
0 59.28 (1.000) 59.28 (1.000) 59.28 (1.000) 59.28 (1.000) 59.28 (1.000) 59.28 (1.000) 59.28 (1.000) 59.28 (1.000) 59.28 (1.000) 59.28 (1.000)
1 57.59 (0.971) 48.05 (0.811) 43.75 (0.738) 48.18 (0.813) 57.47 (0.969) 58.23 (0.982) 51.34 (0.866) 47.94 (0.809) 51.41 (0.867) 58.14 (0.981)
2 55.44 (0.935) 40.47 (0.683) 36.26 (0.612) 40.63 (0.685) 55.16 (0.930) 56.77 (0.958) 44.86 (0.757) 40.63 (0.685) 44.68 (0.754) 56.63 (0.955)
3 52.85 (0.892) 35.42 (0.598) 31.69 (0.535) 35.53 (0.599) 52.55 (0.886) 54.89 (0.926) 39.88 (0.673) 35.72 (0.603) 39.56 (0.667) 54.81 (0.925)

N Location of Second Attached Mass (Continued)
(5,1) (5,2) (5,3) (5,4) (5,5)
0 59.28 (1.000) 59.28 (1.000) 59.28 (1.000) 59.28 (1.000) 59.28 (1.000)
1 59.14 (0.998) 58.14 (0.981) 57.34 (0.967) 58.10 (0.980) 59.13 (0.997)
2 58.98 (0.995) 56.72 (0.957) 55.15 (0.930) 56.65 (0.956) 58.94 (0.994)
3 58.78 (0.992) 55.07 (0.929) 52.82 (0.891) 54.99 (0.928) 58.71 (0.990)
Table 8. Natural Frequency, $\omega_{n}/\sqrt{\rho{h}}$, of $[\alpha\beta\beta\alpha\alpha\beta]_{r}$ Type Laminates, according to the Location of Second Attached Mass when N=2 of First Attached Mass is at (3,3).
N Location of Second Attached Mass
(1,1) (1,2) (1,3) (1,4) (1,5) (2,1) (2,2) (2,3) (2,4) (2,5)
0 43.75 (1.000) 43.75 (1.000) 43.75 (1.000) 43.75 (1.000) 43.75 (1.000) 43.75 (1.000) 43.75 (1.000) 43.75 (1.000) 43.75 (1.000) 43.75 (1.000)
1 43.70 (0.999) 43.36 (0.991) 43.05 (0.984) 43.32 (0.990) 43.69 (0.999) 43.36 (0.991) 40.51 (0.926) 38.79 (0.887) 40.62 (0.928) 43.35 (0.991)
2 43.64 (0.997) 42.86 (0.980) 42.30 (0.967) 42.85 (0.979) 43.64 (0.997) 42.91 (0.981) 37.42 (0.855) 34.84 (0.796) 37.52 (0.858) 42.87 (0.980)
3 43.58 (0.996) 42.35 (0.968) 41.49 (0.948) 42.31 (0.967) 43.57 (0.996) 42.39 (0.969) 34.54 (0.789) 31.73 (0.725) 34.70 (0.793) 42.31 (0.967)

N Location of Second Attached Mass (Continued)
(3,1) (3,2) (3,3) (3,4) (3,5) (4,1) (4,2) (4,3) (4,4) (4,5)
0 43.75 (1.000) 43.75 (1.000) 43.75 (1.000) 43.75 (1.000) 43.75 (1.000) 43.75 (1.000) 43.75 (1.000) 43.75 (1.000) 43.75 (1.000) 43.75 (1.000)
1 43.19 (0.987) 39.04 (0.892) 36.26 (0.829) 39.03 (0.892) 43.10 (0.985) 43.37 (0.991) 40.62 (0.928) 38.79 (0.887) 40.63 (0.929) 43.34 (0.991)
2 42.43 (0.970) 34.95 (0.799) 31.69 (0.724) 35.04 (0.801) 42.34 (0.968) 42.93 (0.981) 37.57 (0.859) 34.84 (0.796) 37.54 (0.858) 42.86 (0.980)
3 41.62 (0.951) 31.72 (0.725) 28.46 (0.651) 31.84 (0.728) 41.45 (0.947) 42.39 (0.969) 34.81 (0.796) 31.75 (0.726) 34.75 (0.794) 42.29 (0.967)

N Location of Second Attached Mass (Continued)
(5,1) (5,2) (5,3) (5,4) (5,5)
0 43.75 (1.000) 43.75 (1.000) 43.75 (1.000) 43.75 (1.000) 43.75 (1.000)
1 43.70 (0.999) 43.33 (0.990) 43.02 (0.983) 43.31 (0.990) 43.69 (0.999)
2 43.64 (0.997) 42.85 (0.979) 42.22 (0.965) 42.82 (0.979) 43.63 (0.997)
3 43.58 (0.996) 42.32 (0.967) 41.36 (0.945) 42.27 (0.966) 43.56 (0.996)
Table 9. Natural Frequency, $\omega_{n}/\sqrt{\rho{h}}$, of $[\alpha\beta\beta\alpha\alpha\beta]_{r}$ Type Laminates, according to the Location of Second Attached Mass when N=3 of First Attached Mass is at (3,3).
N Location of Second Attached Mass
(1,1) (1,2) (1,3) (1,4) (1,5) (2,1) (2,2) (2,3) (2,4) (2,5)
0 36.26 (1.000) 36.26 (1.000) 36.26 (1.000) 36.26 (1.000) 36.26 (1.000) 36.26 (1.000) 36.26 (1.000) 36.26 (1.000) 36.26 (1.000) 36.26 (1.000)
1 36.23 (0.999) 36.04 (0.994) 35.87 (0.989) 36.02 (0.993) 36.23 (0.999) 36.06 (0.994) 34.50 (0.951) 33.40 (0.921) 34.51 (0.952) 36.04 (0.994)
2 36.21 (0.999) 35.81 (0.988) 35.46 (0.978) 35.77 (0.986) 36.20 (0.998) 35.81 (0.988) 32.52 (0.897) 30.85 (0.851) 32.82 (0.905) 35.79 (0.987)
3 36.17 (0.998) 35.51 (0.979) 35.03 (0.966) 35.49 (0.979) 36.16 (0.997) 35.55 (0.980) 30.89 (0.852) 28.71 (0.792) 31.15 (0.859) 35.52 (0.980)

N Location of Second Attached Mass (Continued)
(3,1) (3,2) (3,3) (3,4) (3,5) (4,1) (4,2) (4,3) (4,4) (4,5)
0 36.26 (1.000) 36.26 (1.000) 36.26 (1.000) 36.26 (1.000) 36.26 (1.000) 36.26 (1.000) 36.26 (1.000) 36.26 (1.000) 36.26 (1.000) 36.26 (1.000)
1 35.95 (0.991) 33.59 (0.926) 31.69 (0.874) 33.54 (0.925) 35.88 (0.990) 36.05 (0.994) 34.55 (0.953) 33.41 (0.921) 34.51 (0.952) 36.04 (0.994)
2 35.61 (0.982) 31.03 (0.856) 28.46 (0.785) 31.15 (0.859) 35.39 (0.976) 35.82 (0.988) 32.73 (0.903) 30.92 (0.853) 32.72 (0.902) 35.79 (0.987)
3 35.15 (0.969) 28.81 (0.795) 26.06 (0.719) 29.04 (0.801) 34.86 (0.961) 35.56 (0.981) 31.00 (0.855) 28.82 (0.795) 31.00 (0.855) 35.43 (0.977)

N Location of Second Attached Mass (Continued)
(5,1) (5,2) (5,3) (5,4) (5,5)
0 36.26 (1.000) 36.26 (1.000) 36.26 (1.000) 36.26 (1.000) 36.26 (1.000)
1 36.23 (0.999) 36.02 (0.993) 35.85 (0.989) 36.02 (0.993) 36.23 (0.999)
2 36.20 (0.998) 35.77 (0.986) 35.35 (0.975) 35.76 (0.986) 36.19 (0.998)
3 36.17 (0.998) 35.50 (0.979) 34.82 (0.960) 35.40 (0.976) 36.16 (0.997)

해석 결과에 따르면, 두 개의 첨가질량이 존재하는 경우, 판의 중심부((3,3))에 위치한 첫 번째 첨가질량의 크기가 증가할수록 두 번째 첨가질량의 위치에 관계없이 복합적층판의 고유진동수가 현저히 감소하는 경향을 보였다. 특히 두 번째 첨가질량이 판의 중심부에 가까이 위치할수록 고유진동수의 감소 폭이 더욱 크게 나타났으며, 이는 중심부 질량 집중이 진동에 미치는 영향이 가장 크다는 사실을 시사한다. 판의 중앙에 판의 자중 크기의 첨가질량이 위치한 상태에서 자중 크기의의 1, 2, 3배 크기가 추가로 위치할 경우 진동수가 26.2 %, 17.12 %, 12.61 %의 비율로 감소하였다.

또한 첨가질량의 위치에 따라 동일한 질량 크기를 갖더라도 고유진동수에 미치는 영향이 상이하게 나타났으며, 첨가질량의 크기가 일정하게 증가하더라도 그로 인한 고유진동수 변화율은 첨가질량의 위치에 따라 다르게 나타났다. 이는 첨가질량의 위치에 따른 동적 거동 특성의 민감도가 다르다는 점을 보여주며, 구조물 설계 시 첨가질량의 배치와 관련된 정밀한 고려가 필요함을 의미한다.

Fig. 6-1. Ratio of Natural Frequency according to Location of Attached Mass (1,1)~(1,5), when N(3,3)=1

../../Resources/KSCE/Ksce.2025.45.6.0601/fig6-1.png

Fig. 6-2. Ratio of Natural Frequency according to Location of Attached Mass (1,1)~(1,5), when N(3,3)=2

../../Resources/KSCE/Ksce.2025.45.6.0601/fig6-2.png

Fig. 6-3. Ratio of Natural Frequency according to Location of Attached Mass (1,1)~(1,5), when N(3,3)=3

../../Resources/KSCE/Ksce.2025.45.6.0601/fig6-3.png

Fig. 7-1. Ratio of Natural Frequency according to Location of Attached Mass (2,1)~(2,5), when N(3,3)=1

../../Resources/KSCE/Ksce.2025.45.6.0601/fig7-1.png

Fig. 7-2. Ratio of Natural Frequency according to Location of Attached Mass (2,1)~(2,5), when N(3,3)=2

../../Resources/KSCE/Ksce.2025.45.6.0601/fig7-2.png

Fig. 7-3. Ratio of Natural Frequency according to Location of Attached Mass (2,1)~(2,5), when N(3,3)=3

../../Resources/KSCE/Ksce.2025.45.6.0601/fig7-3.png

Fig. 8-1. Ratio of Natural Frequency according to Location of Attached Mass (3,1)~(3,5), when N(3,3)=1

../../Resources/KSCE/Ksce.2025.45.6.0601/fig8-1.png

Fig. 8-2. Ratio of Natural Frequency according to Location of Attached Mass (3,1)~(3,5), when N(3,3)=2

../../Resources/KSCE/Ksce.2025.45.6.0601/fig8-2.png

Fig. 8-3. Ratio of Natural Frequency according to Location of Attached Mass (3,1)~(3,5), when N(3,3)=3

../../Resources/KSCE/Ksce.2025.45.6.0601/fig8-3.png

Fig. 9-1. Ratio of Natural Frequency according to Location of Attached Mass (4,1)~(4,5), when N(3,3)=1

../../Resources/KSCE/Ksce.2025.45.6.0601/fig9-1.png

Fig. 9-2. Ratio of Natural Frequency according to Location of Attached Mass (4,1)~(4,5), when N(3,3)=2

../../Resources/KSCE/Ksce.2025.45.6.0601/fig9-2.png

Fig. 9-3. Ratio of Natural Frequency according to Location of Attached Mass (4,1)~(4,5), when N(3,3)=3

../../Resources/KSCE/Ksce.2025.45.6.0601/fig9-3.png

Fig. 10-1. Ratio of Natural Frequency according to Location of Attached Mass (5,1)~(5,5), when N(3,3)=1

../../Resources/KSCE/Ksce.2025.45.6.0601/fig10-1.png

Fig. 10-2. Ratio of Natural Frequency according to Location of Attached Mass (5,1)~(5,5), when N(3,3)=2

../../Resources/KSCE/Ksce.2025.45.6.0601/fig10-2.png

Fig. 10-3. Ratio of Natural Frequency according to Location of Attached Mass (5,1)~(5,5), when N(3,3)=3

../../Resources/KSCE/Ksce.2025.45.6.0601/fig10-3.png

4. 결 론

본 연구에서는 복수의 첨가질량이 존재하는 복합적층판의 고유진동수 해석을 위하여 Kim의 방법을 응용하였으며, 첨가질량의 크기 및 위치를 주요 변수로 설정하여 사변단순지지인 경우 1모드에 대해서만 수치해석을 수행하였다. 본 연구의 주요 결론은 다음과 같다.

  • (1) 복수의 첨가질량이 존재하는 복합적층판의 고유진동수 해석을 위해, 설계초기에 계산해야하는 영향계수를 단순 가산하는 Kim의 방법을 간편하게 적용할 수 있었다. 이는 해당 방법이 다수의 첨가질량이 존재하는 복합판 구조물의 고유진동해석에도 효과적으로 활용될 수 있음을 의미한다.

  • (2) 첨가질량이 복합적층판의 중심에 위치할수록 고유진동수가 현저하게 감소하였고 추가로 첨가질량이 존재할 경우 진동수 감소비율이 현저하게 감소되었다. 또한, 판의 중심을 기준으로 대칭 위치에 첨가질량이 존재할 경우 유사한 진동 특성을 나타내는 것으로 분석되었다.

  • (3) 두 개의 첨가질량이 존재하는 경우, 첫 번째 첨가질량이 중심부((3,3))에 위치하면서 그 크기가 증가할수록 두 번째 첨가질량의 위치와 관계없이 고유진동수는 지속적으로 감소하는 경향을 보였다. 특히, 두 번째 첨가질량이 판의 중심부에 가까운 위치에 있을수록 고유진동수의 감소폭이 더욱 크게 나타났다. 또한, 동일한 첨가질량 크기를 적용하더라도 그 영향은 위치에 따라 다르게 나타났으며, 고유진동수의 변화율 역시 첨가질량의 위치에 따라 상이하게 변화하였다.

  • (4) 이러한 결과는 복합재 구조물 설계 시 첨가질량의 위치와 크기를 고려한 최적 배치 전략을 수립하는 데 중요한 기초자료로 활용될 수 있다.

결론적으로, 본 연구를 통해 복수의 첨가질량이 존재하는 복합적층판의 고유진동수 해석이 Kim의 방법을 통해 간단하고 효과적으로 수행될 수 있음을 확인하였다. 또한, 첨가질량의 크기 및 위치에 따라 고유진동수 특성이 민감하게 달라지므로, 구조물 설계 및 해석 단계에서 이를 반드시 고려해야 함을 제시하였다. 본 연구의 결과는 향후 복합적층판 구조물의 동적 해석 및 진동 기반 설계에 유용한 기초자료로 활용될 수 있을 것으로 기대된다.

본 논문에서는 Kim의 방법 확장 가능성을 제시하기 위해 단순지지된 경우 제1모드에 대해서 연구가 진행되었으나, 향후 보다 실질적인 설계자료로 활용하기 위해 혼합 경계조건 상태에서 여러 가지 모드에 대한 연구로 확장할 수 있다.

Acknowledgements

This research was supported by the Regional Innovation System & Education (RISE) program through the Gangwon RISE Center, funded by the Ministry of Education (MOE) and the Gangwon State (G.S.), Republic of Korea (2025-RISE-10-008).

References

1 
Aydogdu M., Filiz S. (2016). "Vibration analysis of symmetric laminated composite plates with attached mass", Mechanics of Advanced Materials and Structures, Vol. 23, No. 2, pp. 136-145DOI
2 
Hong D. W., Shim D. S., Park J. S. (1997). "A study on the natural frequency of composite laminated plate under attached point mass/masses", Journal of the Computational Structural Engineering Institute of Korea, Vol. 10, No. 1, pp. 149-158Google SearchGoogle Search
3 
Hossain N., Islam M. S., Nazmul Ahshan K. H. N., Hossain M. Z. (2015). "Effect on natural frequency of a plate due to distributed and positional concentrated mass", Journal of Vibroengineering, Vol. 17, No. 7, pp. 3751-3759Google SearchGoogle Search
4 
Kim D. H. (1974). "A method of vibration analysis of irregularly shaped structural elements", pp. 39-63Google Search
5 
Kim D. H., Hwang J. W., Chun D. S. (1989). "A simple method of vibration analysis of irregularly shaped composite structural elements", pp. 863-868Google Search
6 
Won C. M. (2002). "A simple method of obtaining exact values of the natural frequencies of vibration for some composite laminated structures with various boundary condition", Journal of Korean Society of Steel Construction, Vol. 14, No. 1, pp. 23-29Google SearchGoogle Search
7 
Won C. M. (2025). "Effect of neglecting self-weight on the natural frequencies of composite laminated plates with attached mass", KSCE Journal of Civil and Environmental Engineering Research, Vol. 45, No. 4, pp. 445-457DOI
8 
Won C. M., Yun K. K., Lee J. H. (2006). "A simple but exact method for vibration analysis of composite laminated plates with all edges simply supported and under lateral and in-plane loading", Thin-Walled Structures, Vol. 44, No. 2, pp. 247-253DOI